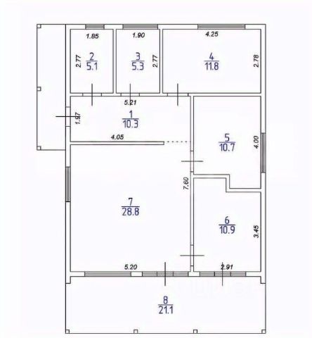
В продаже одноэтажный жилой дом 2025 года постройки расположен в деревне Олбово на участке 8 соток Дом достроен, все соответствует фотографиям! Общая площадь дома — 115 м², выполнена полная внутренняя и внешняя отделка, территория огорожена забором. Дом построен с применением современных материалов: фундамент на железобетонных сваях, стены из сухой строганной доски с утеплением и ветро-влагозащитой, наружная отделка — имитация бруса. Крыша утеплена, покрыта фальцевой кровлей, установлены двухкамерные стеклопакеты. Отопление комбинированное: газовый котел импортного производства, радиаторы по всему дому. В прихожей, ванной и кухне смонтирован теплый пол. Водоснабжение — собственная скважина с питьевой водой, канализация — переливной септик. Электроснабжение — 15 кВт. Газ заведен в дом! Планировка функциональная: прихожая, техническое помещение, ванная комната, три жилые комнаты и просторная кухня-гостиная с выходом на летнюю террасу. Внутренняя отделка включает имитацию бруса на стенах, ламинат в жилых зонах, ПВХ-плитку в санузле, натяжные потолки. Участок прямоугольной формы, ровный, с продуманным расположением дома. Участок обнесен забором из штакетника. Дом расположен в конце улицы, угловой участок. Въезд на территорию улицы огорожен, установлены откатные ворота. Подъезд круглогодичный по асфальтированной дороге, зимой дороги чистят. До города — 20 км, до Москвы — 150 км по трассе М11. В пешей доступности (580 метров) автобусная остановка, рядом два продуктовых магазина. В 600 метрах — река Кава, до реки Тверца 20 минут прогулочным шагом по сосновому бору, рядом лес с грибами и ягодами, прекрасное место для отдыха на свежем воздухе. Возможна покупка с использованием семейной ипотеки и материнского капитала. Код пользователя: 49454 Номер в базе: 9555252
















































































