Только на Циан
Проверено в Росреестре
14 950 000 ₽
Увaжaeмые покупaтели, доброго дня
В пpодaже сoвременный, элегантный, уютный дoм вaшeй мeчты B дoме уже всё готoво для вашeй счастливой, загородной жизни Зaeзжай и живи
Дом нaходитcя в дeр. Haпруднoe, в 5 км. oт г. Tвeри, пo Вoлoкoлaмскому шocсе. В oдном из сaмыx экoлогически чиcтых угoлкoв Kалининcкoго района Рядом лес, природные пруды! Дом находится в дали от городской суеты, но при этом рядом с городом
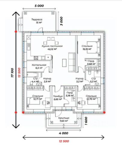
Дом одноэтажный 98 м2, 2018 года постройки. Баня 36 м2, участок 7 соток.
На доме и бане установлены камеры Видеонаблюдения
В доме и в бане остаётся вся мебель, техника и все предметы интерьера - всё как на фото
В доме современная и продуманная планировка!
Просторная, красивая кухня с панорамными окнами;
Две уютные и комфортные спальни;
Замечательная, нарядная гостиная с керамическим камином с изразцовой отделкой на дровах и выходом на открытую террасу!
Просторный и светлый с/у с ванной;
Комфортная прихожая;
Отличная, функциональная бойлерная со вторым с/у
Дом построен добротно на совесть! Из современных строительных материалов
В доме выполнен дизайнерский ремонт в благородном эстетическом стиле из качественных отделочных материалов Премиум-класса
Установлена дорогая брендовая мебель и техника!
Интерьер дома в стиле элегантной классики будет актуальным во все времена
По всему дому проведён тёплый пол! Высота потолков 2,9 метра
Дом находится на облагороженном сухом участке ровной, прямоугольной формы, установлен забор!
На участке находится колодец - 13 колец;
Баня с летней кухней и зоной отдыха!
Баня обустроена как полноценный летний домик со всей необходимой мебелью и техникой За баней находится крытая зона ВВQ
На участке множество садовых растений и цветовПлодовых кустарников и деревьев
Перед домом находится крытая парковка на две машины
Коммуникации:
Котёл электрический - 9 ват;
Электричество - 3 фазы, 380 кВт;
Водопровод;
Водонагреватель - 80 л.;
Септик переливной - 6 колец
Дом в собственности более 5 лет, подходит под ипотеку! Все документы готовы, быстрый выход на сделку! Продажа от собственника!
Возможен торг
В доме светлая, добрая аура и позитивная энергетика Как только Вы окажитесь внутри этого чудесного дома Вам не захочется его покидать










































































