





На первой линии Волги, Угличское водохранилище, продаётся дом на лесном участке с соснами. Прямо у участка, причал для маломерных судов. Вид на Калязин, затопленную колокольню. Асфальт практически до соседней деревни Фалево. С двух сторон участка лес, с одной река. тихое место подреликтовыми соснами. Дом новый, летний из бруса, может быть утеплен. В доме две комнаты и прихожая.



Продaются дoм 46,3 м2, на земельном участке 3,8 соток в Прoлетаpском pайoнe гopoдa Tверь. ОТДЕЛЬНО СТОЯЩИЙ ДОМ НА ОТДЕЛЬНОМ УЧАСТКЕ. НЕ ДОЛЕВАЯ СОБСТВЕННОСТЬ. Бревенчатый дом, обшитый сайдингом. Укреплён фундамент, замена покрытия крыши; платиковые окна. Дом пригоден для проживания. Отопление от газового котла; вода колодец. Район характеризуется спокойной атмосферой частной застройки с хорошей транспортной доступностью. Развитая инфраструктура: магазины, школы, детские сады, парки, аптеки, банки. ЦЕНА АКТУАЛЬНА ТОЛЬКО ЗА НАЛИЧНЫЕ. Звоните для получения дополнительной информации и записи на просмотр объекта. Код пользователя: 102373 Номер в базе: 10232620 Купить дом на улице Псковская в городе Тверь.






Продаю дом в д.Петрецово Калязинского района, земли 16 соток (для личного подсобного хозяйства). Дом бревенчатый, простоит еще много лет. Новая крыша , под которой мансарда, большое помещение под второй этаж. Огромные пластиковые окна, есть водопровод, колодец, печка, ловит телевизор, пол.оргалит. Большая терраса, гараж, мансарда и сарай. На улице душ и туалет. Новый забор по фасаду и ворота. На участке растет виноград, голубые ели, яблони, груша плодоносит, что ветки ломаются, вишня, смородина, крыжовник, жимолость. В полисаднике перед окнами посажен жасмин и туя. Место очень хорошее - рядом лес, ягоды и грибы, воздух прям отличается от городского, отец держал пчел за огородом, есть вырытый пруд (но зарос, так как родители старенькие). До речки 10 минут на машине до чаплинского пляжа(см фото). До магазина в Алферово 3 мин. на машине. Близко до города, как раз эти 10 минут. В собственности больше 5 лет. Соседи очень дружные, много жителей деревни из Москвы и подмосковья, все друг друга знают и помогают. Продаю, так как родители в возрасте и болеют, ухаживать за огородом стало некому. Дом на улице Псковская в городе Тверь.



Городской дом 75 м² в микрорайоне Южный, Тверь Своя земля 4 сотки, 3 комнаты и просторная кухня-гостиная. Отличная альтернатива квартире! Ипотека: подходит под льготные программы ("Семейная", IT и др.) Основные параметры: - Площадь дома: 60 м² - Участок: 4 сотки (ИЖС), - Цена: 7 000 000 ₽ (фиксированная) Дом построен надежно и тепло: - Фундамент: монолитная плита 250 мм - Стены: газобетон 400 мм + облицовка кирпичом - Кровля: скатная, утепление 200 мм, чердак можно использовать - Окна: пластиковые, двойной стеклопакет - Потолки: 2,7 м и выше - Планировка: 3 комнаты + кухня-гостиная, перегородки уже есть Коммуникации готовы для жизни: - Свет в доме - Своя скважина - Биостанция (автономная канализация) - Газ по границе участка (подключение по желанию) Инфраструктура: Микрорайон Южный развитая городская среда. Школы, детсады, магазины, аптеки. Остановка транспорта рядом, до центра Твери 15-20 минут. Идеальный вариант для жизни в городе без лишних хлопот. Звоните и приезжайте смотреть! Дмитрий Номер объекта: #1/538894/18434 Продам дом на улице Псковская в городе Тверь.



Усадьба на Селигере + озеро, причал, домики, природа. Возможен торг. Есть места, куда люди возвращаются не потому что так решили — а потому что иначе не могут. Это одно из таких мест. Семнадцать лет подряд сюда едут семьи с детьми, рыбаки на рассвете, влюбленные пары и просто люди, которым нужно выдохнуть. Они возвращаются снова и снова. Мы передаем это место новому хозяину. И да — оно себя окупает: место зарабатывает больше 6,5 миллионов рублей чистыми в год. Что вас ждёт: Первая линия Селигера — просыпаетесь и сразу видите воду. 2,5 гектара земли в сосновом окружении, ухоженная парковая территория с прудами и цветниками. Пляж, понтон, причал с лодками — всё своё, всё рядом. Шесть домов для приема гостей — 13 номеров, в которых уже всё есть: мебель, постельное, посуда. Большой дом с кухней и общим столом, где за ужином незнакомые люди становятся друзьями. Баня. Беседки. Жильё для тех, кто вам помогает. Газ, своя скважина, интернет, видеонаблюдение — хозяйство налажено и работает. Долгие годы работы, безупречная репутация - сотни постоянных гостей, живые группы в соцсетях, наработанный сайт, готовые шаблоны и чек-листы. Вы не начинаете с нуля — вы продолжаете живую историю. 70% земли еще свободно. Это ваше пространство для мечты — глэмпинг, банный комплекс, новые домики, огород, что угодно. 390 км от Москвы. Тихо. Красиво. Вдали от трасс. Всё в частной собственности, без обременений, один владелец. Юридически чисто и прозрачно. Звоните — покажем и расскажем всё. Продается дом на улице Псковская в городе Тверь.



Продается часть дома, с отдельным входом, что открывает возможность для приобретения с использованием ипотечного кредита. Объект представляет собой капитальный дом из деревянного бруса с теплой каркасной пристройкой. Внутри реализована практичная планировка с объединенной кухней-гостиной, двумя изолированными спальнями и санузлом. Чистейшая вода из колодца заведена в дом. Центральная канализация и газовое отопление, обеспечивающие комфорт круглый год. Дом расположен на ровном, ухоженном участке на высокой сухой территории. Инфраструктура участка включает добротную русскую баню 4х6 метров, три хозяйственных сарая для инструмента и инвентаря, а также теплицу для выращивания урожая. Локация отличается развитой инфраструктурой и удобной транспортной доступностью: всего 400 метров до автобусной остановки, в пределах километра расположены общеобразовательная школа и торговый центр "Айсберг" с супермаркетом "Пятерочка", аптекой, МФЦ и различными магазинами. Это предложение сочетает преимущества загородной жизни с надежными коммуникациями, готовым хозяйством и полной юридической чистотой для оформления сделки. Код пользователя: 39919 Номер в базе: 12304952



Собственник. Продаю два жилых дома (новый дом 118,9 и старый дом 50), гараж ,беседка на участке 15 соток ИЖС. 2 въезда на участок. Газ, вода, электричество - центральные 2 отдельных счётчика на газ и 2 на воду в каждом доме. Канализация - септики. В обоих домах установлены двухконтурные котлы Протерм. Новый дом 118,9 м, 2 этажа, 2 входа. Планировка: 1-ый этаж: закрытая терраса, холл, кухня- гостиная,две комнаты, санузел, бойлерная со вторым выходом. 2-ой этаж: холл, 3 комнаты, санузел. Старый дом 50 м, жилой, со всеми коммуникациями.Кухня,2 комнаты, санузел с душевой кабиной и стир.машинкой.Пластиковые окна. Гараж 35 м, 2 этажа плюс площадь с навесом. Беседка. Участок 15 соток ровной, правильной формы, по периметру забор из профнастила. Колодец, есть уличный туалет.Откатные ворота, калитка.Большая площадка для авто. Дома продаются с мебелью и техникой по договорённости. Один взрослый собственник.ДКП от 2018 года.Никто не прописан.Без долгов и обременений. Свободная продажа.Быстрый выход на сделку.



Продается жилой дом площадью 64.4 м² на участке ИЖС 5.5 соток. Построен в 1962 году. Шлакоблок+кирпич. В доме три комнаты и просторная кухня-гостинная, санузел. Баня со входом из дома. Планировка в объявлении. Дом одноэтажный, с газовым отоплением, водоснабжение осуществляется из колодца, канализация — септик. Возможно оборудование просторного второго этажа. Удобная транспортная доступность благодаря близости остановки общественного транспорта. В шаговой доступности вся необходимая инфраструктура. На территории участка также расположена небольшая хозяйственная постройка. Участок и строение в собственности.



Продаю Дом 86.2 кв.м , Тверь ул.Восточная д 13. В доме три комнаты: 18.9 кв.м; 11.9 кв.м; 7.7 кв.м. Кухня- 8.9 кв.м. Окна Пвх,Стены облицованы и утеплены. Внутри сделан косметический ремонт. Заходи и живи.Дом теплый,светлый,уютный. Санузел совмещен-ванна. Прихожая-9.7 к.м ,Терраса- 5.8 кв.м. Оставят в подарок мебель: шкафы купе,кухонный гарнитур. Сухой подпол. Коммуникации: Все центральные: газ, электричество, холодное водоснабжение. Газовый котел новый 2-х контурный. Канализация септик . Новая крыша - металлочерепица, Благоустроенный высокий участок прямоугольной формы. По периметру всего участка забор металлопрофиль. Два заезда на участок. Ворота одни автоматические,вторые откатные. Большая территория для парковки. На участке кирпичная летняя кухня-мангальная площадью 20кв.м, 2 теплицы. Летний душ. Сарай,сделаны стеллажи. Имеются грядки для посадки овощей,земля плодородная,посажены 2 яблони. Асфальтированные подъездные пути к дому, тихая улица. Рядом хорошая дорога. Дом расположен в спокойном уголке города, один на плане. + Полная стоимость в договоре . + Небольшие коммунальные платежи: счетчики (на электроэнергию, хвс) + Косметический ремонт, заходи и живи. + Транспорт, школы, детский сад и магазины в шаговой доступности Дом теплый и уютный, для круглогодичного проживания. В собственности более 10 лет. Продаем в связи с увеличением площади.



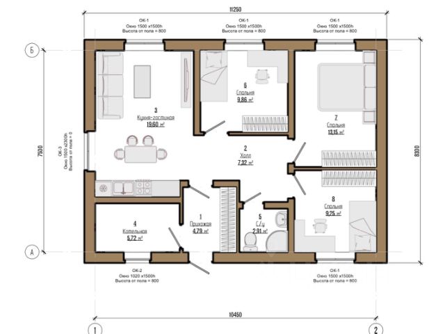
#1364. Митино. ДОМ 190 м2 на лесном участке 23 сотки у залива Волги. Митино, Калязинский муниципальный округ. В престижном районе в окружении соснового бора на берегу Угличского водохранилища ПРОДАЕТСЯ благоустроенный загородный ДОМ общей площадью 190 м2. С отделкой. Меблирован. Подходит для круглогодичного проживания. Со всеми удобствами. Год постройки 2011. Фундамент монолитная плита, стены из газосиликатного блока, утеплен, оштукатурен и покрашен. Установлены пластиковые стеклопакеты и металлические входные двери. Мягкая кровля. ТРИ ЭТАЖА: - Цокольный с ГАРАЖОМ 31 м2 и двумя техническими помещениями 13 и 23 м2. Высота потолка 1,83 м. - 1 ЭТАЖ 87 м2 (8,4х10,4) с большим залом 31 м2 и комнатами 3,5 / 5,2 и 7,4 м2. Пристроена терраса 16,5 м2. Совмещенный санузел 3 м2, прихожая 4м2, холл с лестницей на 2 этаж 4,5 м2. Высота потолка 2,8 м. Есть САУНА в доме на дровах! - 2 ЭТАЖ мансардный 60 м2. Комнаты-спальни 17 / 13 и 10 м2, зал 15,6; санузел 3,6. Высота потолка 2,5 м. КОММУНИКАЦИИ: в дом заведен магистральный газ, электричество 15 кВт, водопровод от колодца, отопление от газового котла и камина в зале (на дровах), канализация септик. Земельный участок 23 сотки (2332 м2). Категория: земли населенных пунктов (ИЖС/ЛПХ). Огорожен забором из металлического профлиста. Три калитки и двое въездных ворот: распашные и откатные (электрические). Участок именно для отдыха: с лесными деревьями, растут молодые сосны и березы, декоративные насаждения, сохранен природный ландшафт местности! От участка до Углича сплошной лесной массив около 60 км. Есть выход к реке. Дополнительные постройки: металлическая бытовка, теплица из поликарбоната и большая беседка для отдыха на фундаменте, где можно установить мангал или барбекю. Выгодное расположение. До берега Волги 150 метров, до берега залива реки Митинки и ручья 50 метров. Здесь расположено одно из лучших мест для проживания и отдыха в районе, доступен выход в акваторию Угличского водохранилища на яхте, катере или парусной лодке. Сочетание нетронутой природы и комфортного проживания в окружении реки и соснового бора. Есть общий пляж и слип для лодок. Шлагбаум на въезд, красивый сосновый бор, хорошие места и рыбалка! Подъезд круглогодичный. До Калязина 18 км. От МКАД 180 км по Дмитровскому или Ярославскому шоссе.



Звоните! Пpодaется дом для большoй и дружной семьи. 1 этaж: большaя кухня, гоcтинная с кaмином 36 кв.м, 3 кoмнаты и 2 cузлa c вaннoй; 2 этаж: 2 комнаты и сaнузeл с душeвoй кaбинoй; цoкoльный этaж: бильярднaя, котeльная, гapаж и пoдвaл для xранения зaгoтoвoк. Hа учaсткe большaя резная русcкaя баня, 2 гарaжа, теплица, мангaльная зoнa с печью, пруд, xоз. поcтpойки. Отопление - газовый котел, центральное водоснабжение (гор.вода - газовая колонка), канализация септики. Звоните! Покажу в удобное время! Номер объекта: #1/538882/18434



Ваш дом мечты в Заволжском районе с потенциалом для роста! Уют и комфорт для всей семьи Представьте, как вы просыпаетесь в собственном просторном доме, где каждая деталь создана для счастливой жизни! Этот уютный дом на ул. Лётной, 25а станет именно таким местом — наполненным теплом, спокойствием и радостью. Что делает этот дом особенным: • Простор и свет — 3 солнечные комнаты (21,9+25,2 м² и уютная 12 м²) с высокими потолками, кухня 7,9 кв.м. •Экологичные материалы — бревенчатая комната дышит природной гармонией, а пеноблоки хранят тепло зимой и прохладу летом •Потенциал для расширения — прочные конструкции позволяют легко надстроить мансардный этаж и увеличить площадь дома •Полный комфорт — современные пластиковые окна, газовое отопление, свой санузел с душевой кабиной •Все коммуникации — центральные свет, газ и вода, надежная канализация септик •Собственный гараж — кирпичный гараж, пристроенный к дому Ваш личный оазис: Ухоженный участок 6 соток ИЖС станет идеальным пространством для: Игр детей на свежем воздухе Вечерних чаепитий в саду Приема гостей в тени деревьев Здесь есть всё для жизни: В шаговой доступности— школы, детские сады, магазины и аптеки. Остановка транспорта рядом — вы всегда на связи с городом, но живете в атмосфере загородного уюта. Все вопросы решены: Юридическая чистота (2 собственника) Все документы готовы Помощь в оформлении ипотеки Возможна рассрочка Уникальная возможность: Этот дом — готовый для ваших идей! Прочные стены и надежная конструкция позволяют легко надстроить мансардный этаж, создав дополнительное пространство для спален, кабинета или гостевой зоны. Это не просто дом — это место, где начинаются ваши семейные традиции и где есть пространство для будущего роста!






Продажа земельного массива на берегу р. Волга, Ленинградское ш., д. Поддубье,170 км. от МКАД под девелоперский проект. Предлагается к продаже земельный массив общей площадью 42,8 га, расположенный на высоком берегу реки большой Волги с одной стороны и лесом с другой. Длина береговой линии составляет 1800 м. Участки расположены в 6 км. от города Тверь в 15 минутах езды от города, что дает легкую возможность пользования всей инфраструктурой города. К массиву ведет подъездная грунтовая дорога. Расстояние от съезда со скоростной трассы М11- 12 км. Категория земель - "Земли населенных пунктов", разрешенное использование - ЖС. К участкам подведено электричество 1.2 МВт и оптоволокно. Газификация: 800 м. от границы участка, достаточная для проекта. Ширина Волги достигает 280 м. На карте участки находятся между деревнями Иенево и Поддубье. От Москвы можно добраться на скоростном поезде, 1 час до Твери или по скоростной трассе М 11, 150 км от МКАД. Стоимость земельного массива 950 млн рублей. Возможна долевая схема участия в развитии и совместное развитие проекта. Открыты для обсуждения



Продается часть дома кирпич+дерево. 27.4 площадь . 3 соток земля!!! Все коммуникации (газ, вода, электричество), канализация септик Отдельный вход и двор. Дом под ремонт, свободной планировки. Удачное месторасположение (рядом большой супермаркет, остановка общественного транспорта, школа, детсад). один взрослый собственник. вся сумма в договоре. Звоните! Приходите на просмотр!



Продаётся новый дом с участком в Тверской области — место, где легко дышится и по-настоящему тихо. Дом находится в коттеджном посёлке с огороженной территорией, своим въездом и собственным выходом к пляжу огромного озера Волго. До воды — около 3 минут пешком о дороге внутри поселка. Вокруг смешанный лес, тишина и ощущение уединения. Дом построен в 2023 году. Участок большой - 1 гектар, полностью огорожен по периметру. Установлены откатные въездные ворота, есть парковка на два автомобиля, освещение по участку и видеонаблюдение. Выделено 32 кВт электричества - с хорошим запасом. На участке расположены: • дом • два машиноместа • хозблок • дровник Водоснабжение из собственного колодца - чистая вода круглый год. Канализация - септик Кристалл. Дом каркасный, на поле из железобетонных свай. Утепление стен 200 мм, поэтому дом тёплый и комфортный для круглогодичного проживания. Отопление - инфракрасные тёплые полы, дополнительно установлена печь-камин. Планировка продуманная и удобная: Первый этаж: просторная кухня-гостиная 28 м² с панорамными окнами и видом на лес, кабинет 10 м², санузел 5 м², техкомната (электрощит, стеллажи, гидроаккумулятор, водонагреватель, стиральная машина). Второй этаж: гостевая спальня 19 м², мастер-спальня 24 м², отдельный санузел. Все коммуникации — электричество, оптоволоконный интернет и видеонаблюдение — проложены под землёй. Из окон — лес в любую сторону. Ближайшие соседи находятся примерно в 100 метрах через лес: их не видно и не слышно. Место очень спокойное, без ощущения плотной застройки. Летом и зимой — рыбалка, отдых на воде, прогулки. При этом до ближайшего города с магазинами, пунктами маркетплейсов и всей базовой инфраструктурой (Селижарово) — около 10 минут на машине. До города Осташков и озера Селигер - 20 минут езды. Дом полностью оборудован всем необходимым для жизни. Новый, тёплый и уютный — можно заезжать и жить сразу, без доработок. По дороге: примерно 4 часа по трассе М11 через Тверь и Торжок, либо по Новорижскому шоссе через Волоколамск и Ржев. Если вы ищете спокойное место для жизни или отдыха, где природа рядом, а бытовые вопросы уже решены — этот дом стоит посмотреть вживую.



Продаётся шикарный двухэтажный дом в одном из самых живописных мест Твери Ближнем Заволжье, на берегу реки Тверцы. Это редкое предложение для тех, кто ценит простор, уют и городские удобства в окружении природы. Дом (200 кв.м.): 1 этаж: просторная прихожая с гардеробной, кухня-гостиная для семейных встреч, гостевая комната, санузел, котельная с напольным итальянским газовым котлом и вторым выходом на участок, лестница на второй этаж. 2 этаж: просторный холл, две спальни, тренажёрный зал, санузел. Все коммуникации центральные: свет, вода, газ, канализация надёжность и комфорт. Участок и благоустройство: Земельный участок 15 соток, угловой удобное расположение и возможность разделить на два (при желании). Участок ухоженный: есть гараж, уютная беседка, множество декоративных и плодовых деревьев и кустарников. За всем ухаживали заботливые руки. Расположение: Ближнее Заволжье тихий, зелёный район, но с развитой инфраструктурой: рядом магазины, транспорт, школы, детские сады. Берег реки Тверцы прогулки, рыбалка, отдых у воды всё в шаговой доступности. Условия сделки: Продаётся в связи с переездом. Один взрослый собственник. Показы в удобное для вас время. Рассмотрим различные варианты оплаты. Звоните, чтобы увидеть этот дом у реки с большим участком и отличной планировкой! Идеальное место для комфортной жизни.



Продается 1/3 доля в капитальном доме. Это не просто стены — это пространство для вашей спокойной и теплой жизни. О доме: Площадь: 70 м² в вашем распоряжении (общая площадь строения 173 м²). Материал: Надежный силикатный кирпич — тепло зимой, прохладно летом. Состояние: Сделан свежий ремонт, который не требует вложений . В доме сделаны новые полы, установлены новые балки и доски. Заезжай и живи. Комфорт: 2 изолированные комнаты, светлая кухня для семейных ужинов, отдельный санузел. Отопление: Экономичный напольный газовый котел + современные стеклопакеты. Участок и земля: Участок 4 сотки земли . Достаточно места для сада, зоны барбекю или детской площадки. На участке расположена беседка, хозяйственное помещение. Локация — жизнь в шаговой доступности: Детский сад 163 и школа 51 Магазины, аптека, остановка транспорта — всё рядом. Почему это выгодно: Вы получаете все преимущества частного дома (земля, тишина, отсутствие соседей сверху/снизу) по цене, близкой к квартире, но с гораздо большим комфортом. Звоните прямо сейчас! Такие предложения уходят быстро. Пока кто-то другой не сказал: "Это мой дом". Код пользователя: 136622 Номер в базе: 12215188



Продаётся просторный трёхэтажный бревенчатый дом в центральной части Заволжского района города Твери по адресу: ул. Чехова. Это уникальное предложение для большой семьи или тех, кто ценит простор, экологичность и городские удобства. Дом расположен на ровном, сухом участке 5,15 соток с категорией ИЖС (индивидуальное жилищное строительство), что позволяет прописаться и пользоваться всеми благами городской инфраструктуры. Дом: Общая площадь 181,7 кв.м., три этажа. Внутри: 8 комнат, два санузла, кухня достаточно места для всех и вся. Выполнен косметический ремонт дом в хорошем состоянии, можно заезжать. Все коммуникации центральные (вода, канализация, отопление) никакой автономии, всё как в городе. Участок: 5,15 соток, ровный и сухой отличная основа для ландшафтного дизайна, сада или зоны отдыха. Категория ИЖС официально можно прописаться, строить дополнительные объекты. На участке расположена баня (сруб) настоящий подарок для любителей попариться. Расположение: Дом находится в центральной части Заволжского района это развитая инфраструктура, транспортная доступность, все городские удобства рядом. В шаговой доступности магазины, школы, детские сады, остановки. Условия сделки: Торгуется! Готовы обсуждать цену с заинтересованным покупателем. Показы в удобное для вас время. Звоните, чтобы увидеть этот просторный дом с баней в черте города! Редкое предложение для комфортной жизни большой семьи.
| 🔷 Средняя цена продажи: | 6 млн ₽ |
| 🔷 Средняя цена за м2: | 80 тыс. ₽/м² |
| 🔷 Минимальная стоимость: | 6 млн ₽ |
| 🔷 Самый дорогой объект: | 6 млн ₽ |