


Только на Циан
24 000 000 ₽
Если вы мечтаете о просторном, уютном и тёплом доме, где каждый метр продуман для комфорта этот дуплекс создан для вас!
О доме:
Надёжное строительство: стены из кирпича, утеплитель - пеноплекс 2 слоя 8 см., облицовка керамическим кирпичом, крыша Shinglas (служит 50+ лет). Ленточный фундамент с закладкой ниже уровня промерзания.
Функциональная планировка в доме 4 спальни и две гостиных для отдыха на 1-м и последнем этаже. Дом кирпичный, что обеспечит вам прохладу летом и тепло зимой.
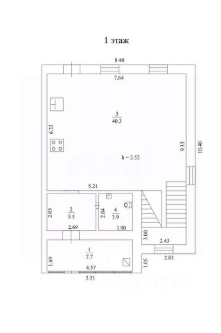
Планировка:
1 этаж:
Кухня-гостиная общей площадью 47,9 кв.м. с теплым полом и выходом на задний двор. Теплый пол - весь первый этаж.
Просторная прихожая.
Гостевой санузел.
Кладовая под лестницей.
При продаже остается кухонный гарнитур со встроенной техникой, стол и стулья, камин, шкаф-купе в прихожей.
2 этаж :
Три спальни.
Просторный санузел с душевой кабиной.
Две гардеробных и одна кладовка под лестницей.
Новым собственникам остаётся красный диван, шкаф и встроенная мебель в большой гардеробной.
3 этаж:
Спальня с гардеробной и кладовкой.
Санузел с полноценной ванной-джакузи.
Комната отдыха для работы, спорта, хобби или релакса.
Лоджия 2,4 кв.м .В стоимость входят диван и два кресла.
Дополнительные преимущества:
Центральные водоснабжение и канализация.
Отопление - газовый котел.
Интернет до 500 Мбит/с, спутниковое ТВ.
Лестница из натурального дерева с широкими и удобными ступеньками.
Благоустроенный участок с ухоженным газоном, на заднем дворе залито основание 50 кв.м. для обустройства бани/сауны и веранды.
На участке растут красивые туи, черешня, декоративные цветы.
Кованые ворота.
Отличные подъездные пути - дорога заасфальтирована и регулярно чистится зимой.
Расположение:
Всего 5-10 минут до центра города на автомобиле.
Рядом всё необходимое для комфортного проживания: 2 детских сада, школа, поликлиника, магазины, аптеки.
В шаговой доступности река Тверца и берёзовая роща отличное место для прогулок и отдыха.
Тихая улица и доброжелательные соседи спокойствие и уют гарантированы.
Без ограничений и обременений!
Звоните договоримся о просмотре! Купить таунхаус в Твери.




















































































