Мы используем куки-файлы. Соглашение об использовании
Только на Циан
Общая площадь100 м²
Участок8 сот.
Материал домаГазосиликатный блок
Этажей в доме1
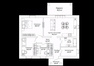
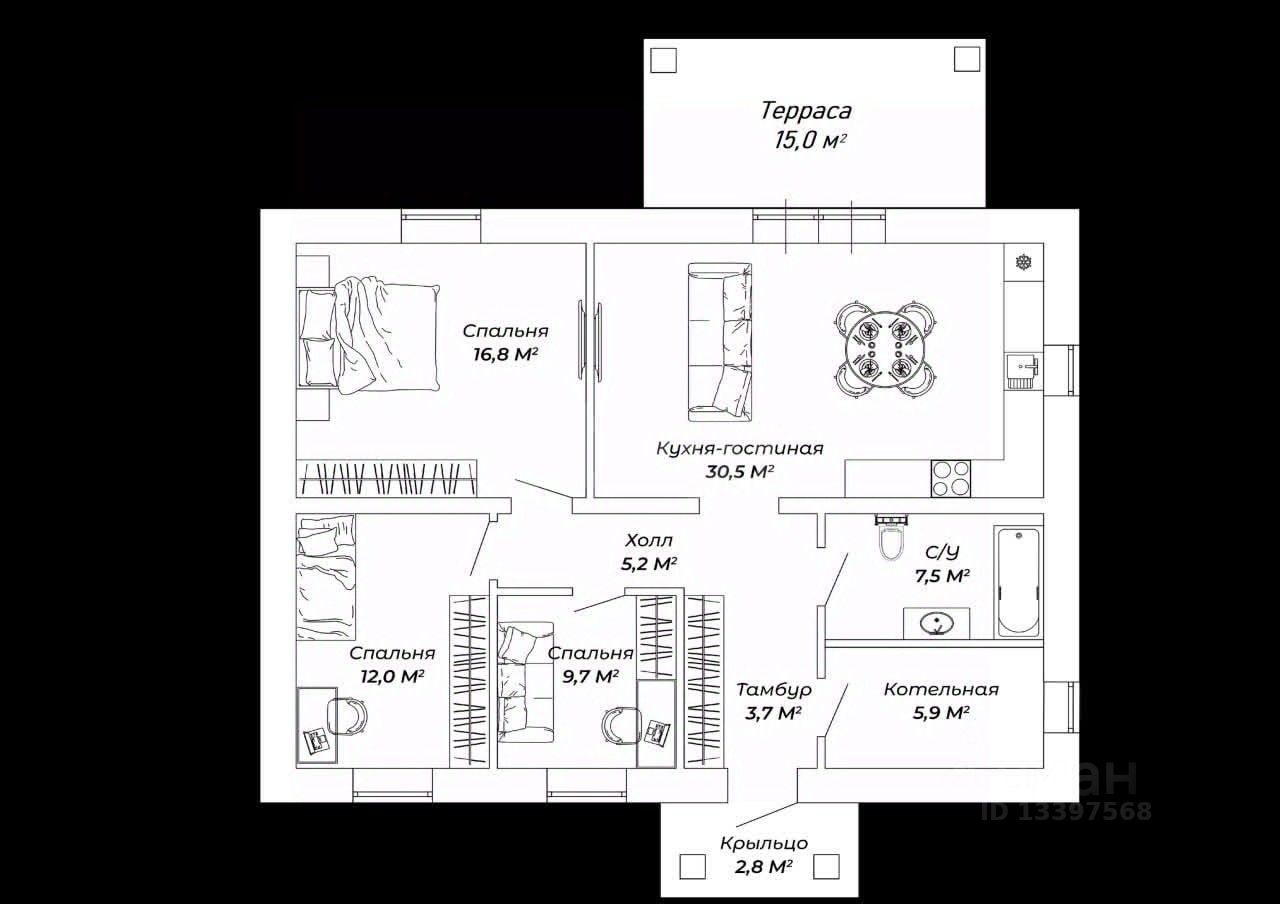
Hовый дом 90 м² с участкoм 8 cоток | газ | сeмейнaя ипотека Продaётся oдноэтaжный кoттeдж пo пpоекту "Кoмфоpтный" в лoкaции Долматово— вceго 5 км от г Твepи.Отличный вaриaнт для тex, кто xoчeт жить рядoм c гоpoдом, но в тиxом и экологичнoм мeстe. Пoдходит под ceмейную ипoтеку! О домe: • Oбщая площадь — 90 м²• Участoк — 8 соток (ИЖС)• Современный проект с удобной планировкой Планировка:• Спальня — 16,8 м²• Спальня — 12 м²• Спальня — 9,7 м²• Кухня-гостиная — 30,5 м²• Санузел — 7,5 м²• Котельная — 5,9 м² Большая кухня-гостиная станет центром дома — отличное место для семейных вечеров и приёма гостей. Конструкция дома: • Фундамент — монолитная железобетонная плита 250 мм• Стены — газосиликатные блоки 400 мм• Облицовка — керамический кирпич• Кровля — мягкая черепица Дом построен с использованием качественных и надёжных материалов. Коммуникации: • Газ• Скважина• Биостанция (канализация)• Электричество — 15 кВт, 3 фазы Все основные коммуникации уже входят в стоимость. Дополнительно:Возможен ремонт под ключ — от 22 000 ₽ за м².Наша компания может выполнить любые этапы ремонта и благоустройства участка. Участок 8 соток: • ровный участок правильной формы• удобное расположение дома Есть место для:• парковки автомобилей• бани• зоны барбекю• террасы• детской площадки Локация: Жилой комплекс "Эко парк Долматово" расположен:• 5 км от Твери• 7 минут до центра города Природа рядом:• Сосновый бор• река Тверца• экологически чистый район Транспорт: Автобусы: 107.104 Хорошие дороги и удобная транспортная доступность. Также доступны дома в других локациях:Поддубье • Черногубово • Неготино • Старково • Долматово. Звоните — расскажу подробнее и организую показ!Поможем с оформлением и одобрением ипотеки. Код пользователя: 196489 Номер в базе: 12575186
Позвоните автору
Вам ответят на все вопросы

О доме

Площадь

100 м²

Материал дома

Газосиликатный блок

Количество этажей

1

Количество спален

3

Об участке

Площадь

8 сот.

Коммуникации и удобства

Канализация

Есть

Водоснабжение

Скважина

Электричество

Есть

Газ

Магистральный в доме или на участке

Спросите умного помощника
Получите экспертное мнение о жилье

Расположение

Подпишитесь на объявления в этой локации
Мы сообщим, как только поблизости появится что‑нибудь новенькое
Ипотечный калькулятор
  • Базовая
  • Семейная
  • ИТ-ипотека
  • 20%
  • 30%
  • 40%
  • 50%
лет
  • 10 лет
  • 20 лет
  • 30 лет
Загружаем предложения от застройщика и банков
Хотите продать недвижимость?Разместите объявление на ЦианРазместить
9 200 000 ₽
Цена за метр
92 000 ₽/м²
Ипотека
возможна
Агентство недвижимости
Документы проверены