Мы используем куки-файлы. Соглашение об использовании
Общая площадь63 м²
Участок10 сот.
Этажей в доме1
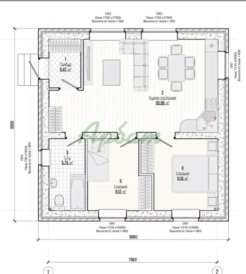
Ваш собственный одноэтажный дом из газосиликата с тёплым контуром, где каждая деталь продумана для комфортной жизни. Участок, который мы предлагаем, это не просто земля, а стартовая площадка для воплощения вашей мечты о загородном жилище. Дом, который вас ждёт (в рамках предлагаемого проекта): Построен из высококачественного газосиликата материала, сочетающего в себе: отличную теплоизоляцию (в доме будет уютно зимой и прохладно летом); превосходную звукоизоляцию; долговечность и устойчивость к внешним воздействиям; быструю скорость строительства. Тёплый контур дома обеспечит: дополнительную защиту от холода; снижение расходов на отопление; комфортный микроклимат в любое время года. Планировка дома продуманная до мелочей: Тамбур (3,42 м) в входной зоне практичное решение для защиты дома от холода и пыли. Здесь можно разместить систему хранения для обуви и верхней одежды, создав порядок с первых шагов в доме. Просторная кухня-гостиная (30,98 м) сердце дома. Пространство зонировано:Кухонная зона с удобным расположением техники и рабочих поверхностей здесь будет приятно готовить. Гостиная зона с местом для большого семейного стола и мягкой мебели идеально для общения и отдыха. Две уютные спальни (9,12 м и 11,15 м) личные пространства для отдыха:В первой спальне (9,12 м) можно разместить двуспальную кровать, прикроватные тумбочки и небольшой шкаф всё для комфортного сна. Вторая спальня (11,15 м) чуть больше здесь найдётся место не только для кровати, но и для рабочего стола или детской зоны. Функциональные коридоры и проходы обеспечивают удобный доступ ко всем комнатам, не загромождая пространство. Практичные ниши и места для хранения в проекте предусмотрены встроенные шкафы и полки, которые помогут поддерживать порядок в доме. Почему этот участок идеально подходит для строительства? Ровный рельеф и высокое расположение никаких подтоплений, идеальная площадка для фундамента. Развитый район участок граничит с уже освоенными территориями, рядом дружелюбные соседи. Коммуникации подведены к границе участка экономия времени и средств на подключении. Юридическая чистота участок в собственности с 2018 года, один взрослый собственник, быстрая и прозрачная сделка. Доступ к современному телевидению и высокоскоростному интернету комфорт проживания обеспечен. Полная готовность к сделке все документы проверены и готовы к передаче. Не откладывайте мечту о собственном доме! Этот участок ждёт именно вас здесь вы сможете построить жильё, которое будет отвечать всем вашим пожеланиям. Звоните прямо сейчас, чтобы узнать больше и начать путь к вашему идеальному дому! ? Обратите внимание: представленный проект это лишь основа для вашего будущего дома. Вы можете адаптировать планировку и отделку под свои потребности: изменить размеры комнат, добавить дополнительные помещения (например, гардеробную или кабинет), скорректировать расположение окон и дверей. Такие изменения могут повлиять на итоговую стоимость строительства финальная цена будет зависеть от выбранных материалов, сложности работ и дополнительных опций. Визуализация проекта Изображения дома, представленные в объявлении, созданы с помощью искусственного интеллекта. Они дают общее представление о том, как может выглядеть ваш будущий дом, и помогают представить атмосферу и стиль пространства. Реальный результат может отличаться с учётом внесённых вами корректировок и особенностей реализации проекта.
Позвоните автору
Вам ответят на все вопросы

О доме

Площадь

63 м²

Количество этажей

1

Об участке

Площадь

10 сот.

Статус участка

Индивидуальное жилищное строительство

Коммуникации и удобства

Канализация

Центральная

Электричество

Есть

Газ

Магистральный в доме или на участке

Спросите умного помощника
Получите экспертное мнение о жилье

Расположение

Подпишитесь на объявления в этой локации
Мы сообщим, как только поблизости появится что‑нибудь новенькое
Ипотечный калькулятор
  • Базовая
  • Семейная
  • ИТ-ипотека
  • 20%
  • 30%
  • 40%
  • 50%
лет
  • 10 лет
  • 20 лет
  • 30 лет
Загружаем предложения от застройщика и банков
Хотите продать недвижимость?Разместите объявление на ЦианРазместить
7 500 000 ₽
Цена за метр
119 048 ₽/м²
Ипотека
возможна
Агентство недвижимости
Документы проверены