Мы используем куки-файлы. Соглашение об использовании
Обновлено: 28 мар, 09:03
Объявление снято с публикации

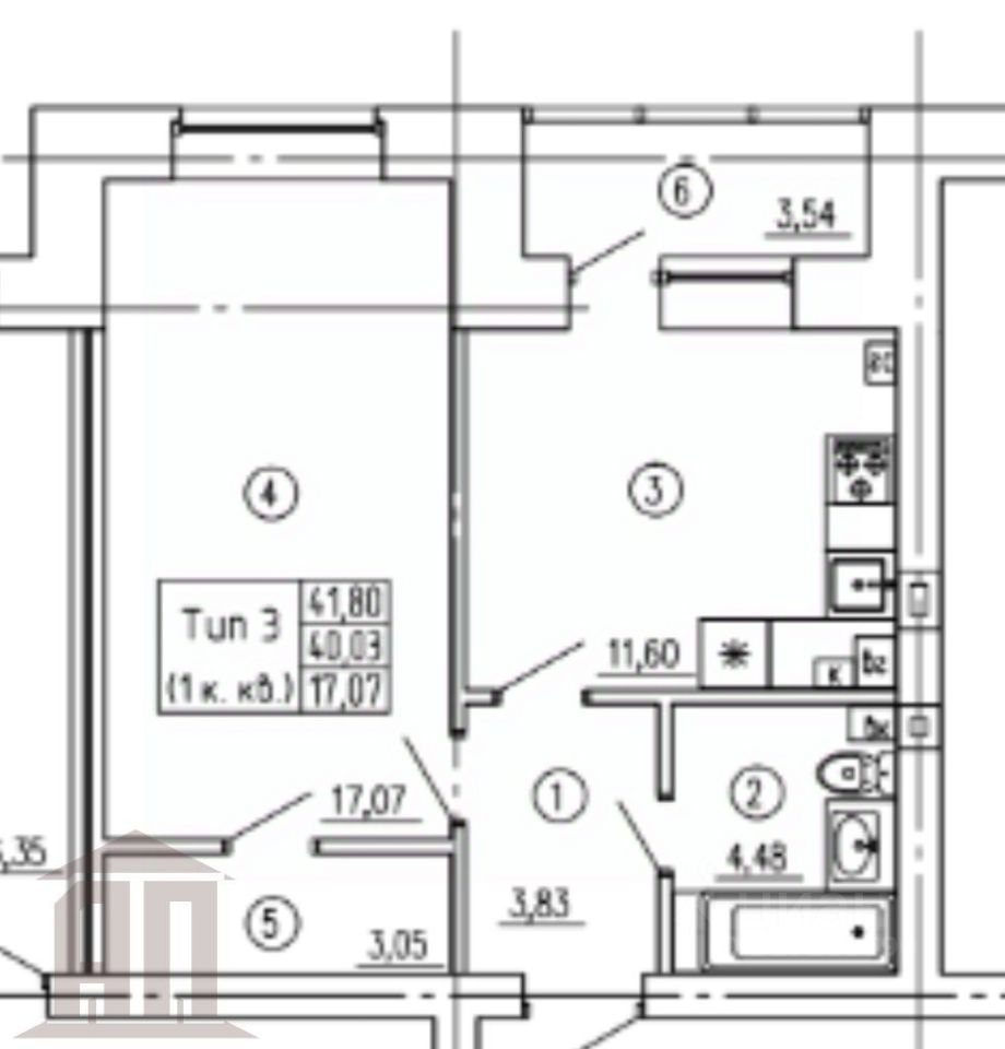
Продается 1-комн. квартира, 44 м²

Общая площадь44 м²
Жилая площадь17 м²
Площадь кухни11,6 м²
Этаж2 из 3
Объявление снято с публикации, поищите ещё что-нибудь

О квартире

Тип жилья

Вторичка

Общая площадь

44 м²

Жилая площадь

17 м²

Площадь кухни

11,6 м²

Санузел

1 совмещенный

Балкон/лоджия

1 лоджия

О доме

Тип дома

Кирпичный

4 900 000 ₽
Цена за метр
111 364 ₽/м²
Условия сделки
свободная продажа
Ипотека
возможна
Агентство недвижимости