Мы используем куки-файлы. Соглашение об использовании
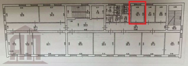
Площадь12 м²
Этаж4 из 5
ПомещениеСвободно
Сдается офисное помещение 12,1 м на 4-м этаже административного здания. Помещение расположено по адресу: г.Тверь Петербургское д.2. Коммуникации: электричество 45 КВт, центральное водоснабжение, канализация и отопление, с/у, интернет, пожарная сигнализация, кондиционер. Высота потолков 3 метра. Круглосуточная охрана территории, въезд через КПП, доступ 24/7. Удобное расположение. В шаговой доступности остановки общественного транспорта. Все условия для успешного бизнеса. Стоимость аренды 800 рублей за м в месяц. Без комиссии.
lock

Войдите или зарегистрируйтесь
для просмотра информации

Просматривайте условия сделки и всю информацию об объекте
Сохраняйте фильтры в поиске и не вводите заново
Доступ к избранному с любого устройства
Неограниченное добавление в избранное
Позвоните автору
Вам ответят на все вопросы
Остались вопросы по объявлению?
Позвоните владельцу объявления и уточните необходимую информацию.
  • Инфраструктура
  • Похожие рядом
  • Общая площадь12 м²
Помощь надёжных риелторов
Риелтор партнёр Циан поможет купить или продать любую недвижимость
9 680 ₽/мес.
127 $/мес.
109 /мес.
Цена за метр
9 680 ₽ в год
Налог
НДС не включен
Комиссия
нет
Коммунальные платежи
не включены
Эксплуатационные расходы
не включены
Агентство недвижимости
На Циан
9 лет
Объектов в работе
138
Риелтор
Суперагент