


100 500 ₽/м²
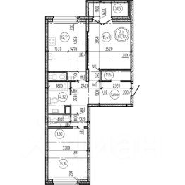
Квартиры в ЖК "Атмосфера" — идеальное сочетание комфорта, стиля и инфраструктуры! Продаются квартиры в новом кирпично-монолитном доме с индивидуальным газовым отоплением, увеличенными окнами и современными планировками. Уже в продаже! О доме: — 15-этажный дом, 4 секции — Увеличенные окна — больше света и ощущение простора — Остекленные лоджии — Индивидуальное отопление — минимальные коммунальные платежи, возможность сделать теплый — Быстрые и бесшумные лифты — Холлы с дизайнерским ремонтом — Закрытая территория — безопасность и уединение — Коммерческие помещения на первом этаже: магазины, салоны красоты, уютные кафе прямо у дома Двор и благоустройство: — Детские и спортивные площадки — Искусственный водоём и озеленённые аллеи для прогулок — Современное освещение и ландшафтный дизайн — Комфортная среда для жизни и отдыха Инфраструктура: — Рядом всё необходимое: гипермаркеты, аптеки, поликлиники — 3 школы и 3 детских сада в пешей доступности — Удобный выезд и транспортная доступность — остановки рядом, маршруты в любой район города Условия покупки: — Ипотека от ведущих банков — Использование материнского капитала — Рассрочка — первый взнос от 10% — TRADE-IN — меняем вашу старую квартиру на новую — Сделка через эскроу-счета — 100% юридическая защита — Работаем ежедневно, покажем в любое удобное для вас время Отделка "White Box" подготовка под чистовой ремонт (7 500 ₽/м²) Отделка "под ключ" - останется только поставить мебель (от 17 900 ₽/м²) Звоните прямо сейчас, чтобы выбрать свою квартиру в "Атмосфере" — пока лучшие планировки ещё в наличии!